
生活是種態度,只要敢想一切皆有可能。房子再小,只要用心打理,也能放下身體跟靈魂。好的設計,即便十幾平的空間,也一樣能讓人住的舒心。接下來分享的是台北市一套使用面積僅17.6平房子,這是我見過最讚的小戶型裝修,空間不大但功能齊全,簡潔有序的設計實用不壓抑。
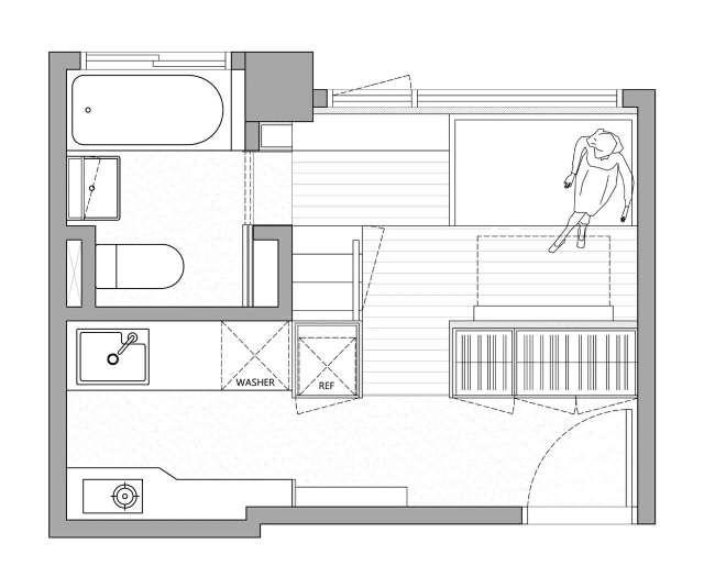
平面佈置圖,原本是一家鋼琴工作室,後來被改造成住房。17.6平的使用面積,3.4米的挑高樓層,裝飾方案有助於小空間流動,改造後重新分配空間,提高空間利用和儲物。
入戶狹長的過道,洗練大方的灰白色調,整體感十足,功能齊全。改造後過道高度有限,放棄吊燈利用內嵌射燈照明,減少壓抑感。規整化一的設計,讓空間不那麼凌亂。
廚房雖小,但設計不含糊,單邊櫥櫃+吊櫃+隔板為廚房提供了足夠的儲物空間,視覺上不會過於擁擠。射燈和隱藏燈帶確保了廚房照明,家電採取嵌入式擺放,歸整美觀不影響使用。
平滑的木質地板,亮白的牆面設計,讓小戶型空間更舒適更亮堂。穿過狹窄的過道,由暗到明的視覺體驗,有種豁然開朗的感覺。
白色簡易樓梯扶手,迎合整體風格,同時也減少空間封閉局促感。大面積使用白色和原木色,營造出舒適自然明亮的居家氛圍。合理利用樓梯空間,增加儲物滿足收納需求。
客廳面積太小,放棄電視安裝,取而代之的是雙排折疊壁櫃,展開後可以是工作區也可以是餐廳,靈活實用節省空間,非常適合小戶型。
俯瞰客廳,緊湊實用的設計。定製沙發床延伸出地台和開放式書架,休閒辦公兩不誤,完全可以生活得從容而不是湊合將就。定製沙發床完美取代購買沙發,尺寸契合度高空間不浪費,底部抽屜補充收納空間。
衛生間緊湊實用,大量使用白色瓷磚提昇明亮程度,減少空間壓抑感。滑門採用鏡面,延伸視野以達到擴大空間效果。置物架設計很巧妙,隱藏於滑門之後,實用美觀兩不誤。懸掛式洗臉盆,簡潔佔用空間少,適合面積不大的衛生間。
根據尺寸選擇合適的浴缸,白色瓷磚覆蓋衛生間每面牆,並與浴缸相匹配。窗戶為潮濕的空間提供了良好的通風和採光。
挨著樓梯口的角落空間,定制簡易桌,桌面和抽屜位於橫樑下方,一個小型室內植物和一個台鐘,簡單又好看。即可以是書桌也可以是梳妝台,一舉兩得。
(此處已添加小程序,請到今日頭條客戶端查看)
臥室全貌,並沒有復雜的裝飾,床墊尺寸剛好合適,邊緣到邊緣。開放式的空間設計,確保了臥室通透採光。壁燈和臥室色調保持一致,整體效果美觀協調。看完這套小戶型設計,是不是覺得很贊,面積雖小但該有的功能一樣不少,而且顏值和收納都很不錯。所以房子麵積不是問題,關鍵在於設計。
|