
將不同的家居賦予不同的色彩和寓意,是設計師對於美好生活的詮釋和尊崇,而自然的色彩是更具溫度的時尚美學。
春暖花開陽光系的橙,生機勃發熱帶雨林式的綠,深邃明淨如紳士的大海般的藍,這些最接近自然的顏色,被設計師搬進家中,回應著人們對於都市自在生活的嚮往和期盼。
橙花與愛麗絲
太陽從最東方的海面上升起,在微瀾漸起的海面灑下斑斕的碎金,太陽更高了些,當陽光照入鋪滿耀眼的眀橙色的室內,牆上掛畫裡的木棉花似乎也舞起了綻放的旋律。亮麗的明橙,這是設計師為如《愛麗絲夢遊仙境》中主人公一般的熱愛生活和幻想的人們所設計的美好生活場景。
溫馨的橙赭色成為這個LOFT小戶型公寓樣板間設計的主要搭配色。開放的客餐廳設置,避免了因空間狹小導致的壓抑感,乾淨明快。設計師將對生活的理解融入其中,不追求極盡奢華,但對生活品質的探索孜孜不倦。
白色大理石牆面與黑色背景牆搭配,富有層次的對比讓整個客廳於歡欣的跳躍中增添一絲沉穩。整個空間的佈置精心且雅緻,簡潔考究的金屬色家居,適時擺放的綠植,鋪陳的淺色系紋飾地毯,都讓其不失為待人接物的極佳場所。
餐廳充分利用客廳、貼牆懸掛式儲物架以及通往二層的旋梯之間的空白進行佈置,既很好地考慮到了有限的空間運用,同時營造了一個別緻溫馨的用餐環境。
二層臥室,充滿活力的橙色基調延續至此,定制掛畫的點綴給人以無限想像和審美體驗。
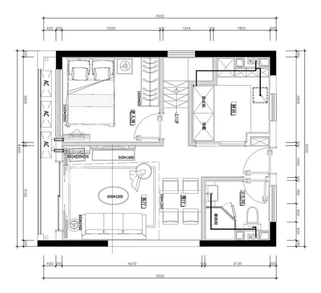
平面圖:
▲1F
▲2F
綠熱帶雨林
有一種氣質叫端莊雅緻,有一種閒適叫自在從容,有一種生活叫不可錯過。
當陽光滲透過白色的紗窗,雙足漫步斑駁的綠意之上,徜徉於地板、桌椅、沙發、盆摘和掛畫等各種深淺交織的綠色當中,感悟萬物皆春的唯美與風情,洋溢著熱帶雨林式味道的生活小居的自然、通暢與愜意撲面而來。
為了滿足新時代年輕人對私人和個性化居住空間的嚮往,設計師在打造小戶型時尚家居的過程中,將對品質的追求融入空間的軟裝陳設中。
在整體佈局上,設計則普遍運用了點線面的組合,圓形的吊燈、布藝座椅和鋼製玻璃桌,抽象的掛畫、沙發等,於簡約的外在體現中充滿了複雜多變的創作組合。
時代豪庭B戶型雙層公寓樣板間採用半圍合式佈局,充當對外空間的客廳作為設計的中心貫穿整體空間。
具有金屬質感的吊燈自二層頂端懸垂而下,金屬框架和玻璃組成的空間隔斷,以及客廳與餐廳之間的開放式連接,打破了傳統LOFT格局的狹窄和蔽攏,讓有限空間得到盡可能的放大和延伸。
牆面、沙發、窗簾及床飾使用了統一的米灰色調,而綠色調的巧妙使用,如斑駁的深綠地毯、置於桌台茶几的植物盆摘和餐具,以及懸掛於臥室的裝飾畫等,又讓整體氛圍多了清新自然的氣息,讓人感到心情明快。
設計師運用簡約現代的設計手法詮釋著小戶型的內核所在,通過對空間的充分理解將設計思想完美呈現出來,既體現了對設計的極致探求,也滿足了現代都市人對於精緻生活的普及性需求。
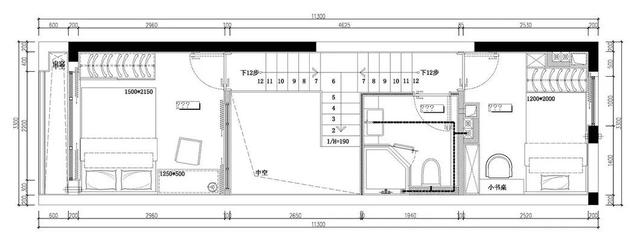
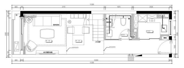
平面圖:
▲1F
▲2F
藍:藍調紳士
藍色通常可以用來隱喻紳士,也因此成為這個空間的主旋律。如同大海的藍色既有的深邃明淨,有時又通過揚起的浪花給人以熱情奔放的印象。
在本案中,設計師對於細節的呈現有著極致的追逐。富有織物觸感的藍色沙發,大理石檯面的圓形組合茶几,以及精心挑選的家居擺件等,都以當下最流行的黃銅做裝飾點綴,整體營造出視覺上的美感。
整個空間沒有過度強調色彩的華麗,而是以其簡約實用的功能體驗和精雕細琢的工藝設計,體現著與家人相處時的浪漫和無處不在的閒適與愜意。
臥室的設計沉穩、大氣,更加註重線條的質感,在顏色的配置上,與總基調相吻合,盡顯優雅和浪漫,而次臥則採用了明麗的橙色,以滿足老人或孩子對溫暖和亮色空間環境的需求。
藝術源於生活,將色彩的多樣化表達反運用於生活,緩解都市快節奏給人帶來的緊張感和壓抑感,讓人感到自由、身心舒展,是設計回歸本初的體現。靈活自由的設計和豐富的色彩運用,也讓我們的家居生活空間盡顯多變又和諧統一。
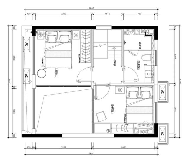
平面圖: